- 200 m²
- Gewerbeimmobilie
aktuell verfügbar
Objektnummer:
Beschreibung
Sichern Sie sich einen außergewöhnlichen Renditeanker in München‑Ramersdorf!
Dieses vollvermietete 5‑Gewerbe‑Ensemble erwirtschaftet eine IST‑Rendite von 8,94 % und verfügt über langlaufende Pachtverträge, unter anderem mit einer Mietbindungen bis 2038.
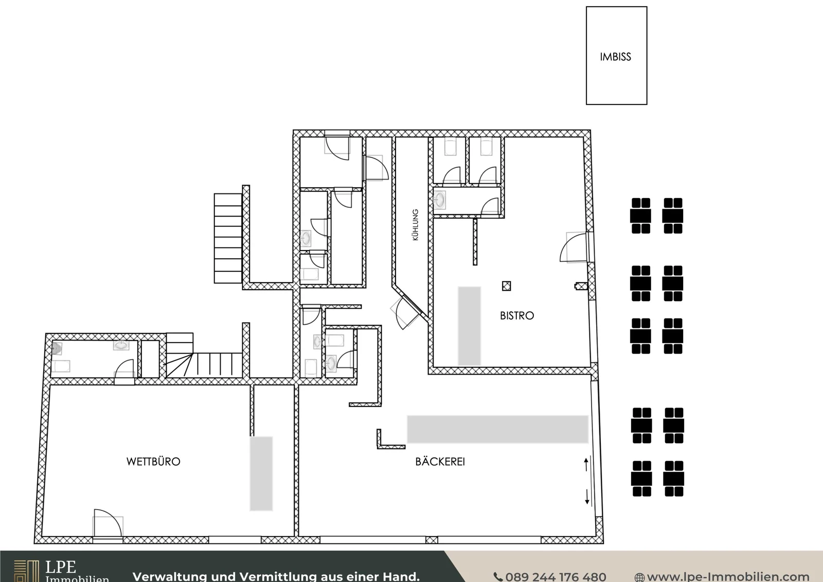
Die rund 200 m² Gewerbefläche
sind auf fünf etablierte Betreiber verteilt:
Bäckerei, Wettbüro, Bar, Imbisswagen und ein Geldautomat (ATM) .
Die monatliche Nettokaltmiete beträgt 11.400 € und sorgt für zuverlässige, diversifizierte Cashflows.
Das Gebäude (Baujahr 1969) befindet sich in einem soliden und gepflegten Zustand. Zwei WEG‑Maßnahmen sind aktuell geplant (Eingangsbereich & Tiefgarage) mit einem voraussichtlichen Anteil von ca. 80.000–90.000 € laut Hausverwaltung.
Optional können zwei Einzelgaragen mit separaten Grundbuchblättern erworben werden, jeweils für 20.000 € .
Ein ideales Investment für renditeorientierte Käufer, die langfristige Mieterstrukturen und einen starken Standort schätzen.
Hier finden Sie alles an einem Ort mit sehr wenig Mitbewerber im Umfeld!
Grunddaten
Raumaufteilung
Ausstattungen
Kosten
Die Käuferprovision beträgt 4,76 % inkl. gesetzlicher Mehrwertsteuer i.H.v. 19% aus dem beurkundeten Kaufpreis. Sie ist verdient und fällig mit Abschluss des notariellen Kaufvertrags zugunsten der LPE Immobilien Management GmbH.
Da es sich um ein Gewerbeobjekt handelt, finden die Regelungen der §§ 656a–656d BGB (insbesondere § 656c BGB) keine Anwendung
Energie
Highlights
Key-Facts:
• 8,94 % Rendite IST
• Vollvermietet mit fünf unabhängigen Gewerbemietern
• JNKM: 136.800 €/Jahr
• Baujahr 1969
• 200 m² Gewerbefläche
• Zwei Garagen separat erwerbbar, je ca. 100 € mögliche Miete/Monat
• Laufende Pachtverträge bis teilweise 2038 – mit Verlängerungsoptio
• Anstehende WEG‑Maßnahmen anteilig (ca. 80.000–90.000 €)
• Nebenkosten laut Wirtschaftsplan 2026: 839,00€
• Das gesamte Inventar gehört den Pächtern
Lage
Das Gewerbeensemble befindet sich im Münchner Stadtteil Ramersdorf, einer etablierten und lebendigen Lage im südöstlichen Stadtgebiet.
Der Standort zeichnet sich durch eine sehr gute Infrastruktur, hohen Alltagsverkehr und eine ausgeprägte Mischung aus Wohn- und Gewerbenutzung aus .
Die unmittelbare Umgebung bietet vielfältige Einkaufsmöglichkeiten, Gastronomie, Versorgungsbetriebe sowie mehrere Bushaltestellen, wodurch eine kontinuierliche Frequenz gewährleistet ist, perfekt für die hier ansässigen Gewerbetypen.
Durch die Lage an einer gut frequentierten Straße profitieren besonders Bäckerei, Bar, ATM und Imbisswagen von starker Laufkundschaft sowie einem hohen Anteil an Stammkundschaft aus der umliegenden Wohnbebauung und der gegenüber liegenden Schule.
Das Wettbüro profitiert zusätzlich von der sehr guten ÖPNV-Anbindung, da Kunden bequem mit oder ohne Auto anreisen können. Der Geldautomat (ATM) erreicht dank seiner straßenseitigen Sichtbarkeit und der gemischten Infrastruktur eine durchgehende Nutzung über den gesamten Tag hinweg.
Ramersdorf verfügt über eine schnelle Anbindung zur Münchner Innenstadt sowie zu wichtigen Verkehrsachsen. Öffentliche Verkehrsmittel wie Bus und S‑/U‑Bahn liegen in kurzer Distanz und ermöglichen dadurch eine unkomplizierte Erreichbarkeit für Kunden und Mitarbeiter .
Auch die umliegenden Stadtteile und das Stadtzentrum sind zügig erreichbar, was die Attraktivität des Standorts für zahlreiche Gewerbearten zusätzlich stärkt.
Als Teil der wirtschaftsstärksten Region Deutschlands profitiert der Standort zudem von Münchens hoher Kaufkraft, stabiler Gewerbenachfrage und einer langfristig gesicherten wirtschaftlichen Dynamik. Die Region zählt zu den bedeutendsten Technologie- und Industriestandorten Europas und bietet Unternehmen ein äußerst robustes Umfeld. Damit bildet die Lage eine solide Grundlage für langfristig sichere Mieterträge aller fünf Einheiten und ergänzt ideal die renditestarke Positionierung des Objekts.
Expose Anfordern
Erforderliche Angaben für Ihre Anfrage
Gerne übersenden wir Ihnen unser ausführliches Exposé mit einer detaillierten Beschreibung des Objektes samt Planunterlagen per E-Mail.
Andreas Schwabe
Ansprechpartner
- makler@lpe-immobilien.com
- 089 244 176 485
Das könnte Ihnen auch gefallen
- Walter-Paetzmann-Straße 26, 82008 Unterhaching
- 52.7 m²
- 1 Zimmer
- Herzog-Heinrich-Straße 30, 80336 München
- 94.35 m²
- Brudermühlstraße 51, 81371 München
- 72.73 m²
Nicht das passende Kaufobjekt gefunden?
Tragen Sie sich jetzt in unsere LPE-Interessentenkartei ein und erhalten Sie als Erstes Zugang zu unseren exklusiven Kaufangeboten in München und Umgebung. Verpassen Sie keine Gelegenheit mehr und finden Sie Ihre Traumimmobilie noch schneller!
Erhalten Sie vor allen anderen Zugang zu unseren exklusiven Immobilienangeboten


































